产品中心
专注高端铝合金门窗型材、阳光房
铝合金型材优化专家,专业批发各种门窗铝型材
首页 » 产品中心 » 窗纱一体系列 » GR88隔热纱窗一体系列

loading

分享到:

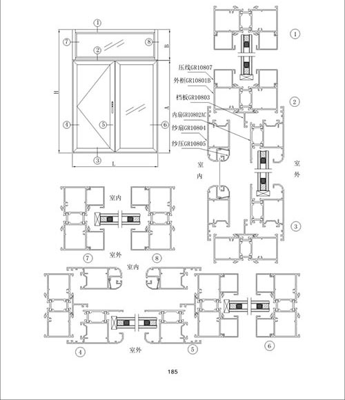
GR88隔热纱窗一体系列

状态:
上一条: 
下一条: 

快速链接

产品中心

宁阁森铝业

杨先生:13913337829 / 13913335087

余先生:13912989833 

电话:025-87150866

传真:025-87156363

地址:南京市江宁区谷里街道庙庄工业园区

版权所有2020宁阁森铝业(南京)有限公司  备案号:苏ICP备2020069183号-1  网站地图 | 合作伙伴:领动外贸建站